在售|希臘蘭亭七期
發表時間:2024年01月29日瀏覽量:
希臘是世界上大理石蘊藏量與種類最多的國度。愛琴海位于非洲板塊和歐亞板塊的交界處,1億8千萬年前非洲板塊開始向北推進,巖石在擠壓下溫度升高產生質變,形成了大理石。從古至今,希臘人把他們崇拜的神靈和敬重的英雄以大理石雕塑的形式記錄下來,塑造著他們不朽的身軀。大理石記載著希臘的歷史和文明。
衛城是希臘的一顆明珠,是雅典民主的象征。在雅典市的任何地方都可以看到。雖然已經是殘垣斷壁卻絲毫不帶凄涼之意,反倒讓人無端生出些許眷戀。

項目介紹
蘭亭七期位于雅典國家文化旅游度假區衛城腳下Petralona ,是衛城腳下較為成熟的居民社區,社區內設有大學,雅典最大的購物中心之一以及雅典國家稅務局,同時也是希臘新政府上臺雅典市政的重點,即將在項目西建造一個大型綜合體娛樂中心。毗鄰Fillopapou山風景區以及衛城景區,地鐵一站路即到達赫淮斯托斯神廟和古羅馬集市。
項目位居民區的核心地帶,周邊基礎設施健全,居住環境優良。住宅區外圍商業生活區域環繞,餐廳咖啡店,超市藥店,購物中心,名牌店鋪琳瑯滿目。足球場,籃球場等生活娛樂設施齊備;周邊還擁有雅典政治大學知名學府,人文藝術氛圍濃郁。

七期的用地極具雅典城市的代表性,場地兩側臨路,另外兩側與其他地塊相鄰。因為是新建建筑,七期在滿足當地的設計規范要求后,可以使用的空間受到了很大的限制。入口交通、垂直交通,以及業主所要求的每個戶型產品的均好性是本項目中的最為重要的課題。
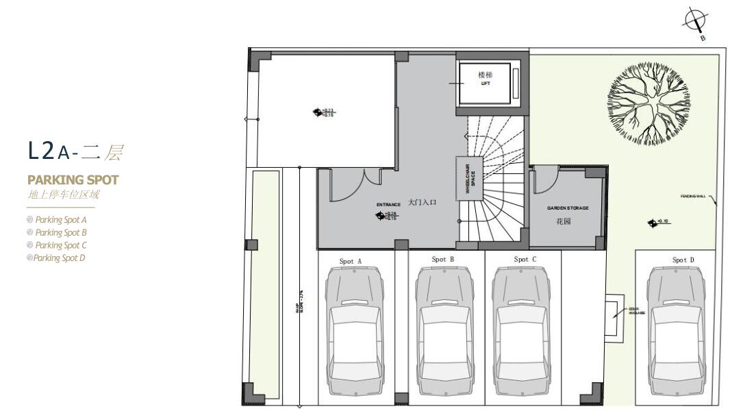
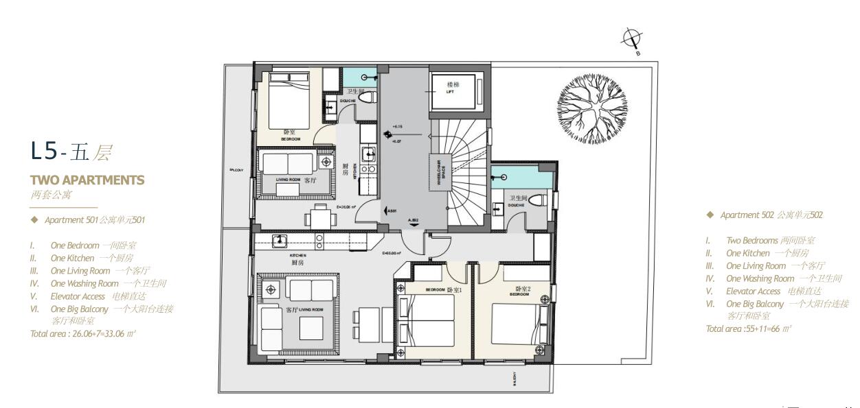
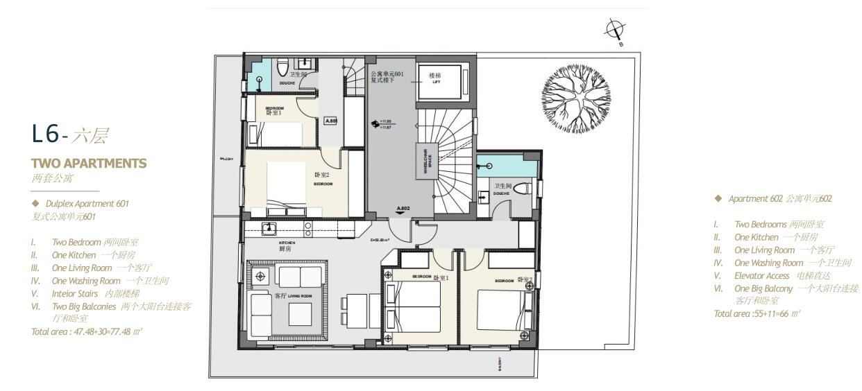
建筑總共有6個自然層,GF為入口電梯廳,1F-4F各設計了3套公寓,5F由于規范的要求,設計了一套獨立的公寓。整棟建筑總共設計了13個單元,每個單元的面積均為25平左右的一室一廳戶型,兩開間采光,并贈送了一個大開間的陽臺。每個單元內部均設計有廚房,獨立衛浴,獨立的臥室和一個客廳。進入空間的設計上我們選擇了一個相對私密的位置做為公寓的出入口,配合小灌木和地燈的設計,營造一個私密、安靜、又不失尊貴的進入體驗。
考慮到本項目為新建建筑,整體的立面風格希望更具有現代感。立面的陽臺統一采用淺色穿孔鋁板做為外擋板,與深色的墻面形成反差和對比。開暢連續的陽臺也與雅典當地的城市面貌向吻合,體現出新穎但不突兀的整體設計理念。
——啟迪設計研究院
項目開發理念
希臘是西方的歷史文明古國,和中國類似,擁有幾千年的文明史,而雅典作為歐洲政治,經濟,文化和教育的發源地同時又是一個擁有 3000 年建城史的歷史古城這點和蘇州非常類似。雅典衛城作為歐洲文明的象征,吸引著全球的游客前往游覽,而雅典衛城周邊的神廟,體育場,商業街,總統府,老街也都是聚集于一片,游客去往雅典游覽優先選擇的也是住在景區附近,客戶購置了這些地區的房產未來無論是出租收益還是自住都是非常有優勢的。
金陽光出國深挖希臘的旅游市場以及地產需求,在希臘政府大力推廣希臘旅游,刺激旅游市場,吸引海外游客的同時,為國際旅客打造優質的旅游地產產品,也為國際投資者打造最具投資價值的投資產品。
區域配套
靠近主干道附近為區域購物中心,其中餐廳酒吧林立,名牌店鋪匯集,人員來往密集,夜市燈紅酒綠;銀行、電影院、圖書館、文化中心各類生活場所因有盡有,滿足日常生活所必需。




優雅的生活享受,醇香的咖啡邂逅,掩于唇間的極致浪漫,彌漫于心的溫情相守。樓下 250 米處即為國際知名連鎖咖啡 Coffee Island 和希臘的靈魂美食 Souvalaki,匯聚名吃。

戶型圖










項目品質
01、平面設計-啟迪設計院設計
啟迪設計擁有建筑行業甲級,以及城鄉規劃編制甲級、風景園林工程設計專項甲級、人防工程和其他人防防護設施設計甲級、市政工程和巖土工程甲級共五項甲級資質,致力于以提高人居環境品質為核心、以生態工程領域創新技術集成為特色,成為提供全方位、一體化服務的人居環境技術集成引領者。根據開發商開發理念和希臘旅游地產需求以及客戶入住舒適感,啟迪設計院根據與當地承建商反復斟磨,合理利用空間,營造一個私密,安靜,又不失尊貴的進入體驗。
02、希臘四大行長期合作承建商ACT
ACT Plus是希臘四大行唯一合作建筑公司。在房地產市場享有卓越聲譽,主要業務環繞希臘與整個巴爾干半島,為設計、監理、施工和項目管理提供全面的工程服務,并為任何技術工作提供全面的技術支持。曾榮獲“希臘市民最信賴開發商”“最佳宜居生態樓盤”等眾多殊榮。保證房產的高品質,為客戶打造品質公寓。
03、歐洲標準的五星級別家居配套
地產均配以歐洲標準的五星級別家居配套,歐洲排名第一的Euromobil Cucine、Regollo、Edra、Media storm等等,高品質的家居配套,聘請當地知名室內設計師、裝潢設計師共同完成設計工作,滿足不同客戶的需求。
希臘移民要求:
申請人要求:
1. 年滿18歲,無年齡上限要求,無學歷及語言要求;
2. 在希臘購買25萬歐元以上的房產;
3. 有至少一次入境希臘的記錄;
4. 無學歷、語言、背景、資金等方面的要求;
5. 無健康證明要求;
6. 隨行人員:全家三代:主申請人、其配偶、其子女(21周歲以下非獨立子女)、主申請人父母、配偶子女。
希臘投資移民優勢:
-
永久產權:25萬歐元購房,永久產權房產,可獲得穩定租金收益;
-
全家身份:一步到位,一家三代歐盟申根永居身份;
-
快速辦理:無需提供資金來源證明,8~12個月即可辦理完成,100%成功;
-
優質教育:可免費入讀公立學校,私立學校學費低廉;
-
宜人環境:地中海氣候,環境舒適宜人;
-
歐盟護照:投資人在希臘合法居住7年之后可申請入籍,子女入讀6年即可入籍。持歐盟護照享歐盟國家教育、醫療、工作等權利,按照歐盟生的標準入學,門檻更低,選擇更廣,學費更便宜;
-
自由出行:希臘永居身份暢行歐洲26個申根國家,自由選擇居住環境。
考察進行時~
考察預約熱線:0512-67286665